Rango de precios: De a

Comparar listados

🏡 Se vende casa en la zona Peiró de l’Alcora

L'Alcora, Norte
AHORA75.000€/ANTES 82.000€ (Gastos no incluidos

Descripción

Se trata de una vivienda de 155 m² construidos, situada en esquina, lo que le aporta una excelente iluminación y ventilación. La casa está distribuida en tres plantas, ofreciendo amplitud y comodidad en cada una de ellas.

🔹 Planta baja:
Al entrar, encontramos un salón-comedor amplio, ideal para reuniones familiares. La cocina independiente cuenta con espacio suficiente para el día a día y está conectada a un lavadero. Además, en esta planta hay un trastero, una despensa para almacenamiento adicional y un baño completo con bañera.

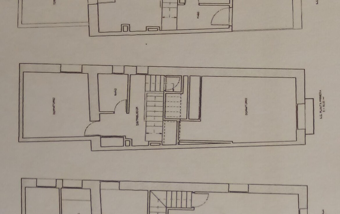
🔹 Primera planta:
En esta planta se encuentran dos dormitorios, ambos con armarios empotrados. El dormitorio principal destaca por su balcón, que aporta luz natural y un espacio al aire libre. También hay un baño completo con plato de ducha.

🔹 Segunda planta:
Aquí encontramos una zona de paso con salida a una terraza, perfecta para disfrutar del aire libre. Además, la planta cuenta con un trastero, un almacén, una chimenea y una lavandería, que da acceso a otra terraza adicional.

La vivienda ofrece múltiples espacios versátiles y bien distribuidos, lo que la convierte en una opción ideal para quienes buscan comodidad y amplitud.

📞 Para más información o concertar una visita, no dudes en contactarnos. ¡Ven a descubrir esta casa con muchas posibilidades!

*El precio de comercialización no incluye impuestos ni honorarios de la agencia.
**Las superficies expresadas tienen carácter descriptivo y son aproximadas. El anuncio puede contener errores.

Detalle

  • Icon
    ID de propiedad
    19882
  • Icon
    Tamaño del terreno
    155
  • Icon
    Año de construcción
    1963

Actualizado en abril 1, 2025 a 8:42 am

Dirección

  • Dirección: Alcora (Castellón)
  • Ciudad: L'Alcora
  • Estado / Condado: Alcora
  • Barrio: Norte, Oeste
  • País: España

Agente de contacto

Emavi
  • Emavi
  • 605178212
  • 964245000 - 964361951
Ver listados

Preguntar sobre esta propiedad

Propiedades similares

11.500€/(Gastos no incluidos)

CASA / SOLAR EN ALCORA

Calle Useras, Grupo la Paz, Castellón de la Plana, Plana Alta, Castellón, Comunidad Valenciana, 12006, España

: 64

Casa, Solar Urbano

Emavi

hace5 años

11.500€/(Gastos no incluidos)

: 64

Casa, Solar Urbano

hace5 años

Sin revisión ( 0 fuera de 5 )

Escribe una reseña

Inicia sesión para la revisión